Rivitalo
No mutta nyt!
Kerrankin koti aivan kaupungin paraatipaikalta Kuusiluodosta. Ydinkeskustan tuntumassa, mutta täysin omanlaisessa luonnonrauhassaan. Ulos astuessa pääset suoraan yhteen Oulun parhaista puistoalueista, Hollihakaan.
Täällä on kaikki, mitä viihtyisältä asumiselta vaan voi toivoa. Tämä omalla tontilla sijaitseva koti asumismukavuuden lisäksi hurmaa, myös ennätysalhaisilla asumiskustannuksilla, vastikkeen ollessa vain 290 €/kk. Kaupungin kaksi parasta puolta yhdistyvät täällä täydellisesti, sillä parissa minuutissa olet joko kaupungin sykkeessä, torikahveilla tai vaihtoehtoisesti kaupungin rauhallisimmilla ja vehreimmillä puistoalueilla ja ulkoilumaastoilla tai mikset sitten merellä.
Lisäksi tämä taloyhtiön päätyyn sijoitettu koti on kerrassaan hurmaava, sillä se ei ole toisten huoneistojen puristuksessa, vaan sijoittuu väljästi omaan rauhaansa. Pieni auringossa kylpevä oleskelupiha, johon on mukava sijoittaa kesän tullen grilli sekä aurinkotuolit ja nauttia leppoisista kesäpäivistä aivan ydinkeskustan tuntumassa puistomaisemaa ihaillen ja meren tuoksusta nauttien.
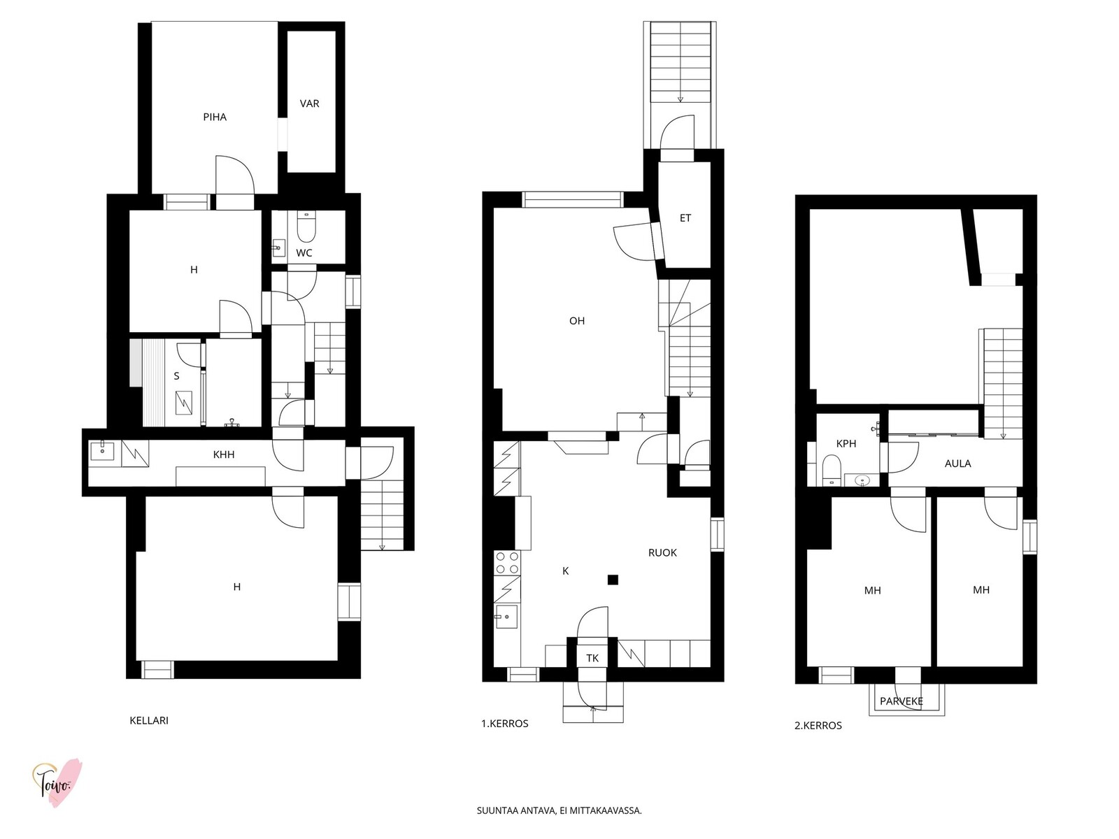
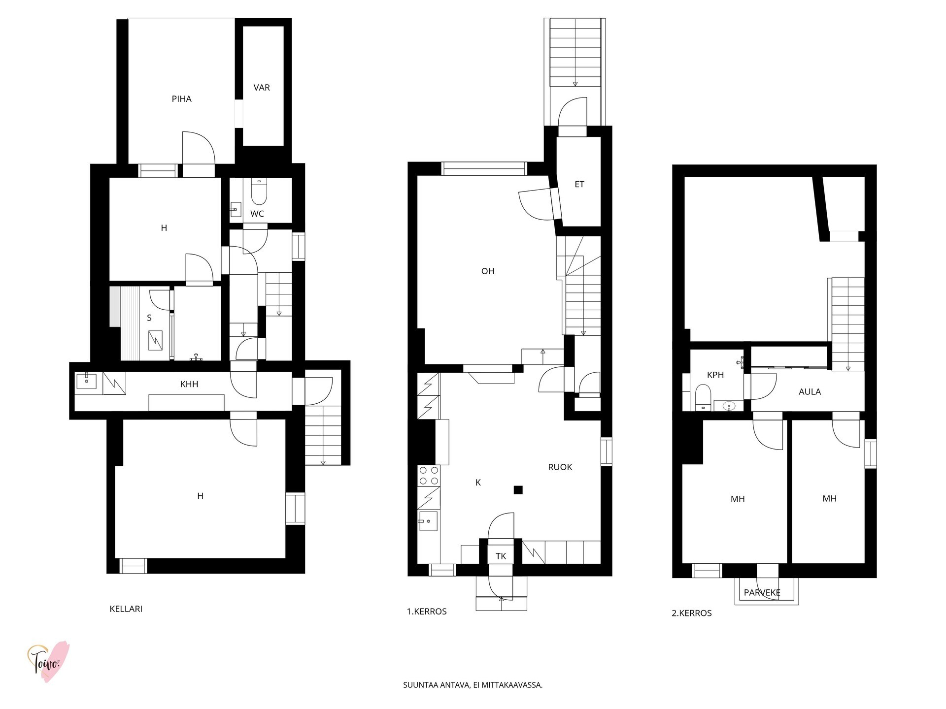
Tämä Yki Heikkisen suunnittelema taloyhtiö kutsuu astumaan peremmälle. Keskikerrokseen sijoitettu sisäänkäynti vastaanottaa asukkaat ja toimii käyntinä upeisiin oleskelutiloihin. Kaunis ja korkea viistokatto antaa tilaan upeasti ilmavuutta ja syksyn tullen omaan takkaan on mukava sytyttää lempeä tuli.
Keittiö on osittain auki olohuoneeseen, joten kokkailu on huoletonta ja helppoa. Tilaa on reilusti ja varustelutaso on loistava. Kaapistot ja monet vetolaatikot takaavat, että täällä on vaivatonta säilyttää keittiötarvikkeita ja mukava kokkailla herkkuruokia niin omalle perheelle kuin vieraillekin. Alkuperäiset tiilirakenteet yhdistettynä puhtaan valkoiseen, Ai että!
Kodin kaksi makuuhuonetta on sijoitettu talon yläkertaan omaan rauhaansa.
Lisäksi yläkerrassa on soma kylpyhuone peseytymistä varten.
Kodin varsinaiset kylpytilat saunoineen sekä takkahuone on sijoitettu kellaritiloihin. Koko kellaritila on remontoitu pari vuotta sitten ja vastaa hyvin tämän päivän laadukkaita vaatimuksia.
Pukeutumishuone, joka on helposti sisustettavissa vaikka kolmanneksi makuuhuoneeksi. Tilasta on käynti kätevästi omalle pihalle vievälle upotetulle terassialueelle, jonne jo varhain keväästä aurinko paistaa ihanasti. Kellarin pukeutumishuoneesta on käynti myös kodin upeisiin pesutiloihin.
Kodinhoito on myös sijoitettu kodin kellariin ja omaksi tilakseen. pyykin pesu täällä on vaivatonta ja tilaa löytyy myös pyykin kuivatukseen.
Kellarissa on myös ihana tiiliseinällä varustettuhuonetila, jossa on ihana yöpyä tai sisustaa leffa tai harrastehuoneeksi.
Autolle löytyy valmiiksi sähköauton latausasema.
Kuusiluodosta ja Saarankadusta haaveilevat kaikki, mutta vain harva pääsee kiinni täällä sijaitseviin koteihin. Toimi siis nyt ja tule ostamaan mitä upeimmalla sijainnilla oleva koti omaksesi.
Mitä muuta enää voisit toivoa?
Lisätietoja Riina 040 552 2233 | riina@toivolkv.fi 
Kohdetta myy

Esittely
Perustiedot
Saarankatu 6
90100 Oulu
134,5 m². Ensimmäinen ja toinen kerros 88 m² ja kellaritilat 46,50 m². Pinta-ala on tarkistusmitattu.
Hinta ja kustannukset
Laskettu velattomasta myyntihinnasta.
Hoitovastike 290,00 € / kk
Lisätiedot
SähkökiuasSauna remontoitu 2022.
Asunnon tilat ja materiaalit
Pintamateriaalit: 1 ja 2 kerros: parketti. Kellari: Marmori kuvioinen vinyyli. Kph, sauna ja wc: Villeroy&Boch laattaa.
Varusteet: liesituuletin, astianpesukone, kiinteät valaisimet
Seinien pintamateriaali: maalattu, muu
Lattian pintamateriaali: laminaatti
Keittiön tasot: laminaatti
Liesi: muu, induktio
Lattian pintamateriaali: laminaatti
Lattian pintamateriaali: laminaatti
Makuuhuoneiden määrä: 3
Varusteet: suihku
Seinien pintamateriaali: kaakeli
Lattian pintamateriaali: laatta
Seinien pintamateriaali: kaakeli
Lattian pintamateriaali: laatta
WC-tilojen määrä: 2
Varusteet: pesukoneliitäntä, pesuallas, pyykkikaapit, pöytätaso
Seinien pintamateriaali: muu
Lattian pintamateriaali: laatta
Varusteet: kaapistot
Katon pintamateriaali: Varttikate
Taloyhtiö
Jätevesipumppaamon asentaminen 2015. Jätevesikaivon kunnostus, Ulkovuorauksen puuosien maalaus 2014. VHF-antenni 2012. Katto pinnoitettu, viemäreiden huuhtelu 2009. Jätekatoksen rakentaminen 2008. Yhteisantenni, puutarhavajan rakentaminen 2006. Ylivuotopumppu saostuskaivoon, lämpöputket lämmönvaihtimeen ja putkien eristäminen 2005. Taloyhtiön putkista asbestin poisto, sauna uusittiin 2004. Patterien termostaatit ja linjasäätöventtiilit uusittu ja patteriverkosto on uusittu 2003. Lämmönvaihdin, viemärin poistoputki ja puhelinjakamo uusittu 2002. Sähköpääkeskus ja nousut uusittu 1992. Ulko-ovet, ulkopinnoite ja parvekkeet uusittu 1990. Käyttövesiputket uusittu 1989. Katto tukirakennelmineen uusittu, Kellaritilat 1982.
Ojakyläntie 130, 91 100 Ii
Muut lisätiedot
Autopaikat: 6
Huoneistolla kaksi autopaikkaa.
Toinen paikka on sähköauton latausasemalla varustettu ja toinen lämpöpistokepaikka.














































