Kerrostalo
Tervetuloa Torikadulle!
Tässä elegantisti uudistetussa, ylimmän kerroksen kodissa yhdistyvät valo, tila ja kaupunkielämän mukavuus täydellisellä tavalla. Suuret ikkunat kahteen ilmansuuntaan tuovat runsaasti luonnonvaloa ja luovat ilmavan tunnelman, jossa koti tuntuu aina kutsuvalta ja raikkaalta.
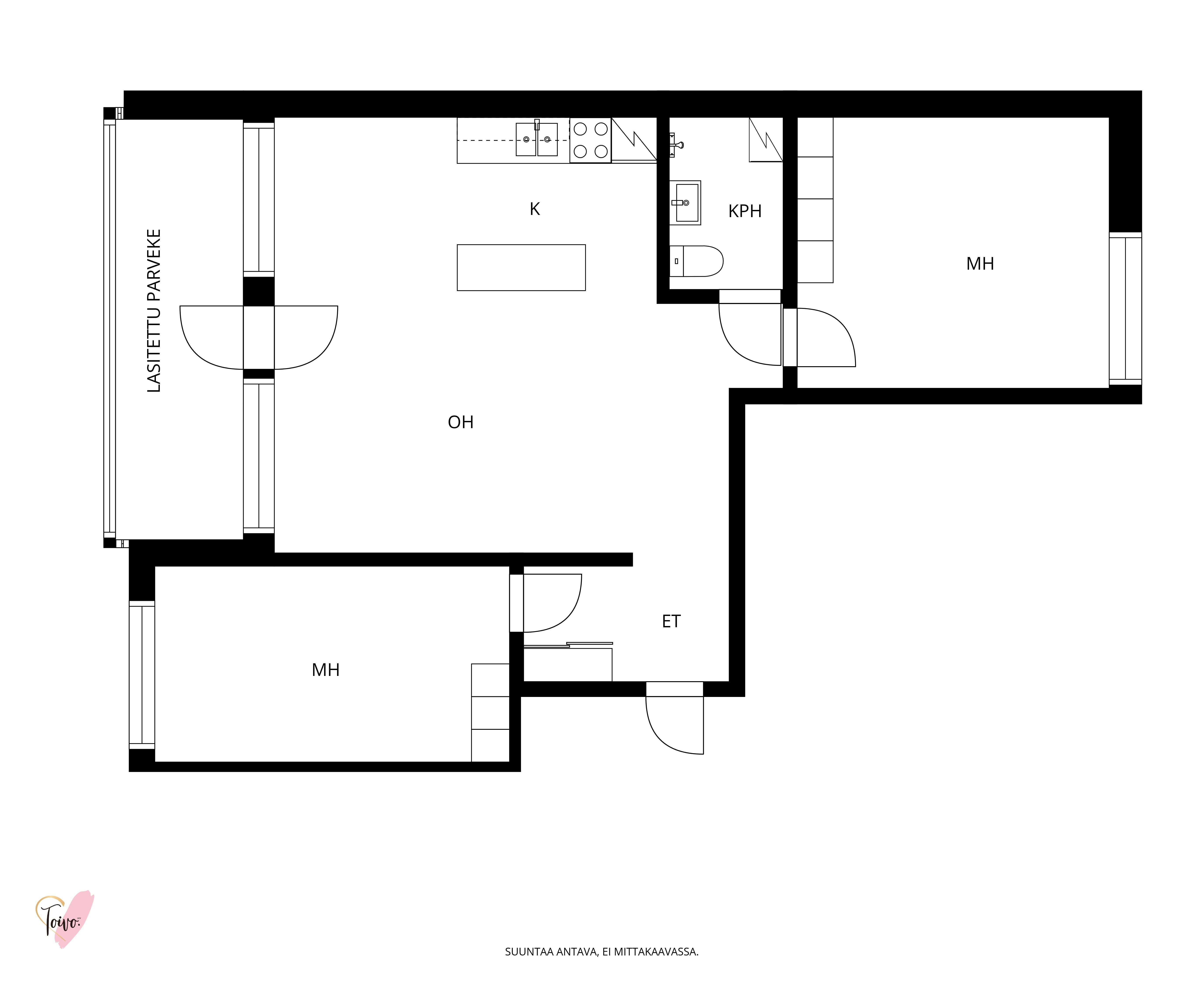
Heti sisään astuessa katse kiinnittyy olohuoneen ja keittiön avaraan kokonaisuuteen, joka huokuu modernia tyyliä ja ajatonta harmoniaa. Vaalea, laadukkaasti varusteltu keittiö on kodin sydän. Tyylikkäät kalusteet ja ensiluokkaiset kodinkoneet tekevät ruoanlaitosta nautinnon ja tilaa riittää niin säilytykselle kuin työskentelyllekin.
Ruokailuryhmälle on oma rauhallinen paikkansa ikkunan äärellä, jossa voi nauttia aamukahvista auringon kajossa. Olohuone ja keittiö muodostavat yhtenäisen, valoisan tilan, joka muuntuu helposti erilaisiin sisustusratkaisuihin ja elämäntilanteisiin.
Lasitettu parveke on kuin oma kesäkeidas. Ihanan hulppea tila, jossa voi nauttia pitkistä illoista, sisustaa viihtyisän oleskelunurkkauksen ja luoda tunnelmaa kausivaloilla myös pimeämpinä vuodenaikoina.
Makuuhuoneet on sijoitettu fiksusti eri puolille kotia. Toisesta saa helposti työhuoneen tai vierashuoneen, kun taas päämakuuhuoneessa on runsaasti säilytystilaa ja rauhallinen tunnelma.
Kylpyhuoneessa vallitsee harmoninen, ajaton värimaailma, joka kutsuu pysähtymään ja rentoutumaan arjen keskellä. Hyvin suunniteltu pohjaratkaisu ja näppärä paikka pyykinpesukoneelle tekevät arjesta vaivatonta. Taloyhtiön viihtyisät saunatilat viimeistelevät asumismukavuuden.
Sijainti on erinomainen niille, jotka arvostavat keskustan läheisyyttä ja monipuolisia palveluja. Kävelyetäisyydeltä löytyvät Limingantullin ja keskustan kaupat, ravintolat sekä erinomaiset liikunta- ja ulkoilumahdollisuudet, jotka luovat upeat puitteet aktiiviseen elämäntapaan.
Hyvin hoidettu taloyhtiö seisoo omalla tontillaan ja sitä on ylläpidetty huolellisesti kattavien remonttien avulla. Tämä vaalea ja harmoninen koti on täydellinen valinta, kun kaipaat laadukasta ja huoletonta asumista lähellä keskustaa, mutta kuitenkin omassa rauhassa.
Tämähän kuulostaa kodilta, eikö totta?
Nina 040 585 0153 | nina@toivolkv.fi | instagram @nina_toivolkv 
Kohdetta myy

Esittely
Perustiedot
Torikatu 78
90120 Oulu
Hinta ja kustannukset
Laskettu velattomasta myyntihinnasta.
Hoitovastike 324,30 € / kk
Rahoitusvastike 82,52 € / kk
Lisätiedot
Ilmansuunta: länsi, luode
Asunnon tilat ja materiaalit
Varusteet: mikroaaltouuni, astianpesukone, liesituuletin / suodatin
Lattian pintamateriaali: laminaatti
Keittiön tasot: laminaatti
Liesi: induktio, erillisuuni
Seinien pintamateriaali: maalattu
Lattian pintamateriaali: laminaatti
Seinien pintamateriaali: maalattu
Lattian pintamateriaali: laminaatti
Makuuhuoneiden määrä: 2
Varusteet: pesukoneliitäntä, wc-istuin, suihku
Seinien pintamateriaali: kaakeli
Lattian pintamateriaali: laatta
Katon pintamateriaali: Huopa
Taloyhtiö
2023 Kuntoarvio ja kylpyhuoneiden kuntotarkistus.
2021-2022 Viemärit kuvattu.
2021 Kattoremontti.
2020 Rappujen valaisimet, huoneistojen ovet sekä lukitusremontti.
2017 Parvekkeiden peruskorjaus.
2013 Käyttövesijohtojen peruskorjaus.
2012 Kaukolämmön siirtimien uusiminen.
2008 Viemäriverkoston osittainen peruskorjaus pinnoittamalla.
2006 Saunaosaston kunnostus.
2003 Ikkunoiden ja parvekeovien uusiminen.
1995 Vesikatto maalattu.
Palovaroittimien asennus 2025.
Kiilakiventie 1, 90250 Oulu
044 309 9922
Kiinteistöhuolto Jernvall Ky
Torikatu 56 M 3, 90120 Oulu
Muut lisätiedot
Toteutuneet autopaikat yhtiössä 18 kpl.
Autopaikat vuokrattavissa taloyhtiöltä.























